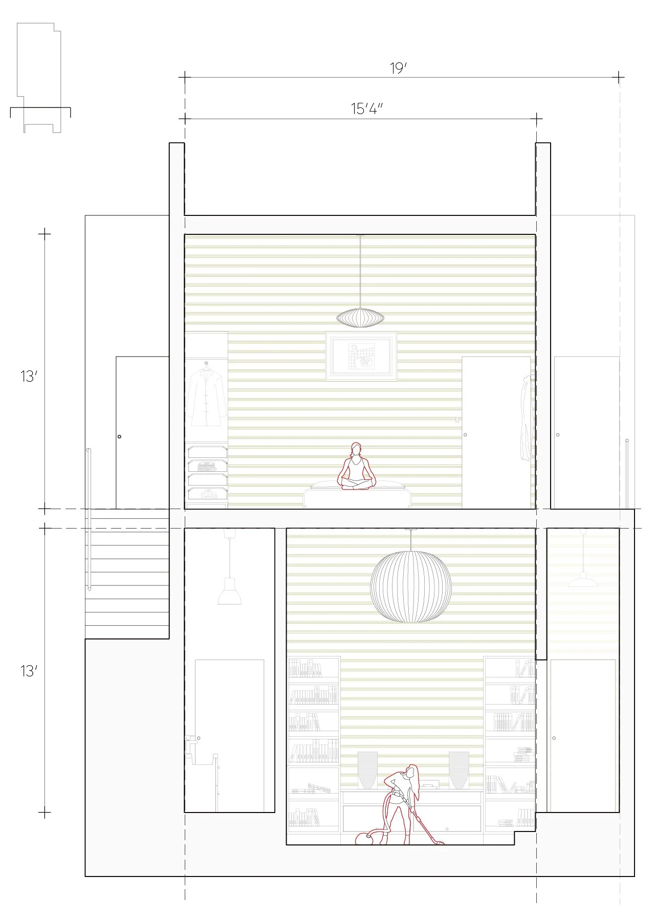
Spatial Relationships Within a Shell

This abstract study explores how interior spaces are positioned within a shell-like structure. Some spaces align with the outer boundary, creating a lighter sense of enclosure, while others are embedded between layered shells, producing greater depth. This shifting condition blurs the distinction between interior and exterior.

Lorem ipsum dolor sit amet, consectetur adipiscing elit, sed do eiusmod tempor incididunt ut labore et dolore magna aliqua. Ut enim ad minim veniam, quis nostrud exercitation ullamco laboris nisi ut aliquip ex ea commodo consequat.

Section C

Cross Section D

Cross Section E

이전
이전

Reframing Vacancy

다음
다음

Postal Network Reimagined